Nhà ở xã hội Phú Thọ DMC: Tổng quan dự án & cơ hội an cư bền vững tại Quận 10

Lý Nguyễn
|
21/01/2026

Giới thiệu tổng quan về dự án Nhà ở xã hội Phú Thọ DMC

Nhà ở xã hội Phú Thọ DMC (tên pháp lý: Dự án Nhà ở xã hội Lý Thường Kiệt – Phú Thọ DMC) là một trong những dự án NOXH hiếm hoi được triển khai tại khu vực trung tâm TP.HCM – Quận 10. Dự án hướng đến mục tiêu giải quyết nhu cầu nhà ở cho người lao động, cán bộ – công chức, người thu nhập trung bình và thấp theo đúng định hướng phát triển nhà ở xã hội của Nhà nước.

Trong bối cảnh quỹ đất nội đô ngày càng khan hiếm, việc một dự án nhà ở xã hội Quận 10 được triển khai bài bản, quy mô lớn, pháp lý rõ ràng như Phú Thọ DMC đã thu hút sự quan tâm lớn từ thị trường. Không chỉ mang ý nghĩa an sinh, dự án còn mở ra cơ hội an cư lâu dài tại khu vực có hạ tầng hoàn chỉnh và giá trị sống cao.

Thông tin pháp lý & chủ đầu tư dự án Phú Thọ DMC

Chủ đầu tư dự án

    • Chủ đầu tư: Đức Mạnh Group
    • Doanh nghiệp hoạt động trong lĩnh vực đầu tư – phát triển bất động sản, xây dựng và hạ tầng, với định hướng tập trung các dự án phục vụ nhu cầu ở thực.

Việc dự án do một chủ đầu tư có năng lực triển khai giúp tăng mức độ tin cậy về tiến độ, chất lượng xây dựng và pháp lý – yếu tố đặc biệt quan trọng với phân khúc nhà ở xã hội.

Thông tin pháp lý cơ bản

    • Tên dự án: Nhà ở xã hội Lý Thường Kiệt (Phú Thọ DMC)
    • Thời hạn sở hữu: Lâu dài
    • Hình thức bàn giao: Hoàn thiện cơ bản
    • Tình trạng pháp lý: Dự án nhà ở xã hội theo quy hoạch được phê duyệt

Theo cập nhật đến tháng 12/2025, dự án đã cơ bản hoàn thành phần thô bên ngoài và đang triển khai các hạng mục hoàn thiện. Hiện tại, chưa có thông báo chính thức về thời điểm mở bán nhà ở xã hội 324 Lý Thường Kiệt, Quận 10 .

Vị trí dự án Nhà ở xã hội Phú Thọ DMC Quận 10

Địa chỉ chiến lược tại trung tâm thành phố

    • Địa chỉ: 324 Lý Thường Kiệt, Phường 14, Quận 10, TP.HCM

Đây được xem là một trong những vị trí đắc địa bậc nhất đối với phân khúc nhà ở xã hội, khi nằm trên trục đường Lý Thường Kiệt – tuyến giao thông huyết mạch kết nối nhiều quận trung tâm.

Khả năng kết nối vùng vượt trội

Từ dự án, cư dân dễ dàng di chuyển đến:

    • Quận 1, Quận 3 chỉ trong 10–15 phút
    • Quận 5, Quận 11, Tân Bình thông qua các trục đường lớn
    • Gần các tuyến giao thông công cộng, bến xe, tuyến metro trong tương lai

Lợi thế vị trí giúp nhà ở xã hội Phú Thọ DMC không chỉ phù hợp để ở mà còn đảm bảo tính ổn định, thuận tiện cho công việc và sinh hoạt lâu dài.

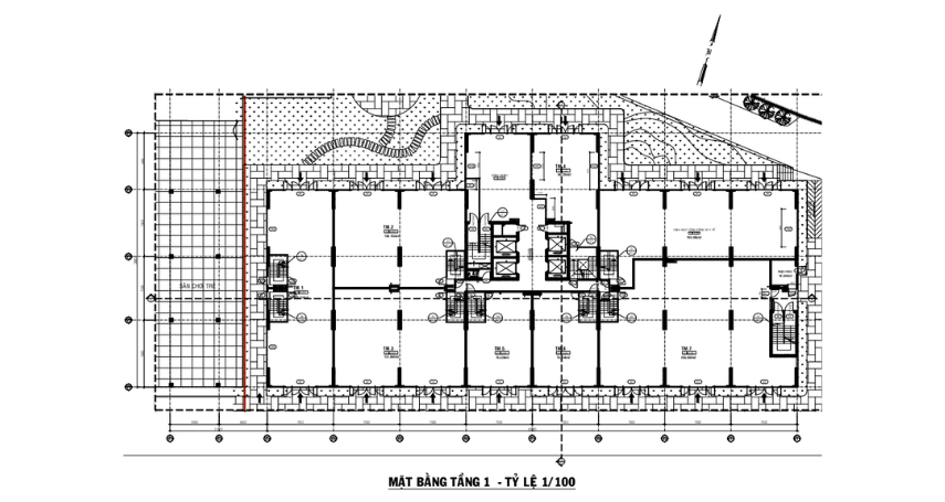
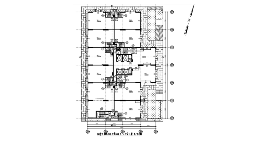
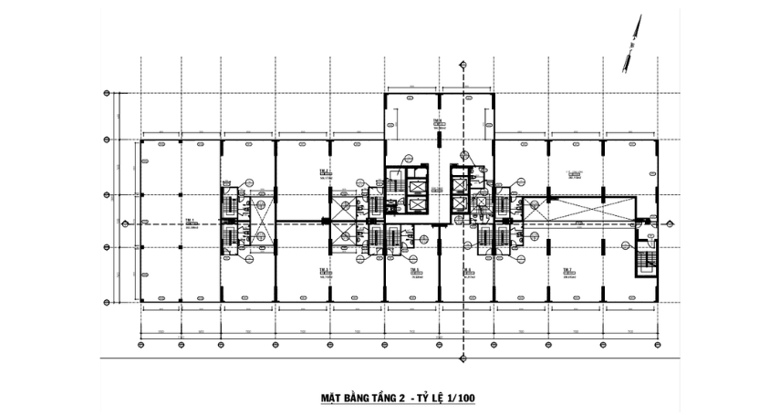
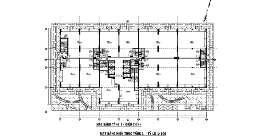
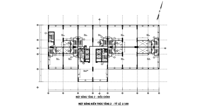
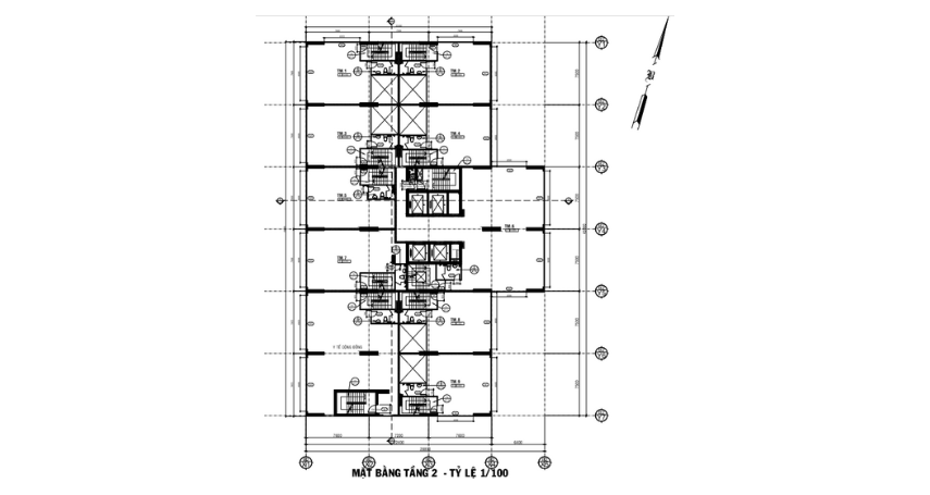
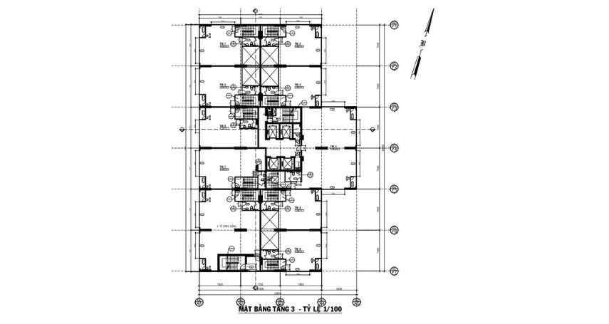
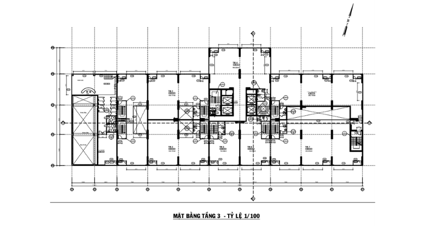
Quy mô tổng thể & mặt bằng dự án Phú Thọ DMC

Quy mô dự án

Theo hồ sơ dự án:

    • Tổng diện tích khu đất: 19.204,72 m²
    • Diện tích đất xây dựng: 18.005,2 m²
    • Mật độ xây dựng: 37,9%
    • Quy mô: 4 block căn hộ cao 25 tầng
    • Số lượng căn hộ: khoảng 1.254 căn
    • Tầng hầm: 01 tầng hầm + 01 bán hầm để xe

Cấu trúc dự án được quy hoạch bài bản, đảm bảo cân đối giữa không gian ở, giao thông nội khu và tiện ích công cộng.

Phân bổ các block căn hộ

    • Block A1: 277 căn – tổng diện tích sàn 27.336,80 m²
    • Block A2: 382 căn – tổng diện tích sàn 35.524,85 m²
    • Block B1: 277 căn – tổng diện tích sàn 27.732,79 m²
    • Block B2: 318 căn – tổng diện tích sàn 27.119,98 m²

Việc chia nhỏ quy mô theo từng block giúp tối ưu vận hành, đảm bảo mật độ cư dân hợp lý – yếu tố rất quan trọng với các dự án NOXH.

Diện tích & thiết kế căn hộ nhà ở xã hội Phú Thọ DMC

Diện tích căn hộ đa dạng

Dự án cung cấp nhiều loại diện tích, phù hợp với từng nhóm đối tượng:

    • 48 m²: Studio / 1 phòng ngủ
    • 58 m²: 1 phòng ngủ mở rộng
    • 65 m²: 2 phòng ngủ tiêu chuẩn
    • 79 m²: 2 phòng ngủ + không gian sinh hoạt lớn

Sự đa dạng diện tích giúp người mua dễ dàng lựa chọn căn hộ phù hợp ngân sách và nhu cầu sử dụng.

Thiết kế hướng đến công năng & ở thực

Các căn hộ được thiết kế:

    • Tối ưu ánh sáng và thông gió tự nhiên
    • Bố trí phòng khách – bếp – phòng ngủ khoa học
    • Ban công riêng, đảm bảo không gian sinh hoạt thoải mái

Đây là điểm cộng lớn của nhà ở xã hội Phú Thọ DMC khi không chạy theo hình thức mà tập trung vào chất lượng sống lâu dài.

Hệ thống tiện ích nội khu & ngoại khu

Tiện ích nội khu đồng bộ

Dù thuộc phân khúc nhà ở xã hội, dự án vẫn được đầu tư hệ thống tiện ích thiết yếu:

    • Sân vui chơi trẻ em
    • Hồ bơi nội khu
    • Trường mầm non
    • Khu sinh hoạt cộng đồng
    • Khu y tế cơ bản
    • Giao thông nội bộ kết nối đồng bộ

Các tiện ích này đáp ứng trọn vẹn nhu cầu sinh hoạt hằng ngày cho cư dân, đặc biệt là các gia đình trẻ.

Tiện ích ngoại khu hoàn chỉnh

Nhờ vị trí trung tâm Quận 10, cư dân dễ dàng tiếp cận:

    • Bệnh viện Chợ Rẫy, BV 115
    • Trường học các cấp, đại học
    • Trung tâm thương mại, chợ truyền thống
    • Khu thể thao Phú Thọ, nhà thi đấu

Đối tượng & điều kiện mua nhà ở xã hội Phú Thọ DMC

Dự án áp dụng đúng quy định về điều kiện mua nhà ở xã hội TP.HCM, bao gồm:

    • Người chưa sở hữu nhà ở tại TP.HCM
    • Có hộ khẩu hoặc tạm trú dài hạn
    • Thu nhập thuộc diện được mua NOXH
    • Ưu tiên người lao động, cán bộ – công chức, lực lượng vũ trang

Việc đáp ứng đúng điều kiện giúp người mua tiếp cận nhà ở với mức giá thấp hơn nhiều so với căn hộ thương mại cùng khu vực.

Giá bán & tiềm năng an cư lâu dài

Hiện tại, giá bán chính thức của nhà ở xã hội Phú Thọ DMC chưa được công bố. Tuy nhiên, theo mặt bằng chung NOXH tại TP.HCM, mức giá dự kiến sẽ thấp hơn đáng kể so với căn hộ thương mại Quận 10.

Với vị trí trung tâm, pháp lý lâu dài và tiện ích đầy đủ, dự án được đánh giá cao về:

    • Khả năng an cư ổn định
    • Giá trị sử dụng thực tế
    • Tiềm năng tăng giá dài hạn trong tương lai

Đánh giá tổng quan dự án Nhà ở xã hội Phú Thọ DMC

Ưu điểm nổi bật:

    • Vị trí trung tâm Quận 10 hiếm có
    • Quy mô lớn, quy hoạch bài bản
    • Pháp lý rõ ràng, sở hữu lâu dài
    • Phù hợp nhu cầu ở thực

Lưu ý:

    • Chưa có lịch mở bán chính thức
    • Nguồn cung có hạn, cạnh tranh hồ sơ cao

Nhà ở xã hội Phú Thọ DMC là một trong những dự án NOXH đáng chú ý nhất tại TP.HCM hiện nay, đặc biệt với những ai đang tìm kiếm giải pháp an cư bền vững tại Quận 10. Dự án hội tụ đầy đủ các yếu tố: vị trí tốt, quy hoạch hợp lý, tiện ích thiết yếu và định hướng ở thực rõ ràng.

Thông tin liên hệ

    • Hotline: 0968688081
    • Email: marketing@a-connection.com.vn
    • Văn phòng giao dịch trực tiếp: Tòa nhà A-Connection, 708-710-712 Cách Mạng Tháng Tám, Phường Tân Sơn Nhất, TP. Hồ Chí Minh, Việt Nam

YÊU CẦU TƯ VẤN





    Bài viết liên quan

    A-connection - Chủ đầu tư cần gì ở đơn vị phân phối mặt bằng? 7 tiêu chí lựa chọn đối tác hiệu quả

    Chủ đầu tư cần gì ở đơn vị phân phối mặt bằng? 7 tiêu chí lựa chọn đối tác hiệu quả

    Lý Nguyễn
    |
    10/03/2026
    A-connecton - A-Connection – Đối tác phân phối mặt bằng cho các chủ đầu tư lớn

    A-Connection – Đối tác phân phối mặt bằng cho các chủ đầu tư lớn

    Lý Nguyễn
    |
    06/03/2026
    A-connection - Thuê Mặt Bằng F&B TTTM Phú Thọ DMC Có Phải Lựa Chọn Tối Ưu Để Mở Quán Ăn Quận 10?

    Thuê Mặt Bằng F&B TTTM Phú Thọ DMC Có Phải Lựa Chọn Tối Ưu Để Mở Quán Ăn Quận 10?

    Lý Nguyễn
    |
    06/03/2026
    A-connection - Mở showroom tại TTTM Phú Thọ DMC Lý Thường Kiệt có khả thi không? So sánh TTTM và mặt bằng phố

    Mở showroom tại TTTM Phú Thọ DMC Lý Thường Kiệt có khả thi không? So sánh TTTM và mặt bằng phố

    Lý Nguyễn
    |
    05/03/2026